爱采购

发产品

  • 发布供应
  • 管理供应

图库浏览完毕

重新浏览
推荐图库
1 / 26

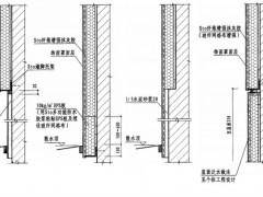
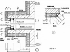
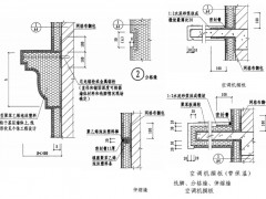
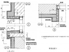
A 型——聚苯乙烯泡沫塑料板薄抹灰外墙外保温系统

2010-10-01 19338
A 型——聚苯乙烯泡沫塑料板薄抹灰外墙外保温系统
  • cnbaowen
    加关注1
  • 没有留下签名~~
举报收藏 0打赏 0
更多>推荐图库

2010-10-0115

2010-10-0122

2010-10-0111

2010-10-0112

2010-10-016

入驻

企业入驻成功 可尊享多重特权

入驻热线:0573-82720373

请手机扫码访问

客服

客服热线:0573-82720373

小程序

小程序更便捷的查找产品

为您提供专业帮买咨询服务

请用微信扫码

公众号

微信公众号,收获商机

微信扫码关注

顶部