微信公众号
保温材料网
扫码关注公众号
客服中心
频道地图
增值服务
服务介绍 服务对比 建站服务 精美商铺
排名推广 广告服务
积分商城 意见反馈 联系我们
首页
选择频道搜索
发产品
图库浏览完毕
线脚分割线 过街楼(面砖饰面)
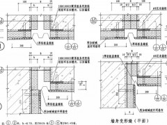
墙身变形缝(剖面)(面砖饰面)
墙身变形缝(平面)(面砖饰面)
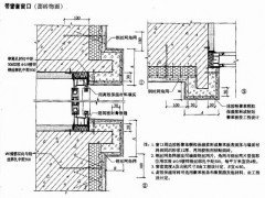
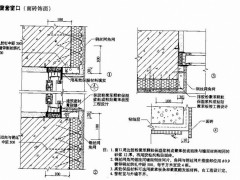
凸窗窗口(面砖饰面)
勒脚 (面砖 饰面)
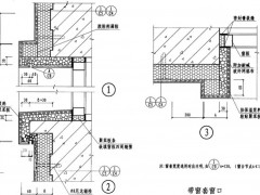
带窗套窗口(面砖饰面 )
不带窗套窗口(面砖饰面)
热工指标及厚度选用表
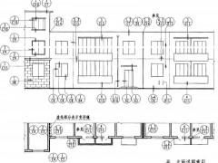
平、立面索引图
聚苯板板型和拼装固定
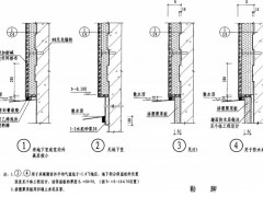
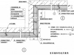
首层墙体构造及墙角
二层及二层以上墙体构造及墙角
勒脚
女儿墙和挑檐
窗口
带窗套窗口
挑窗窗口
阳台
保温阳台
墙身变形缝(平面)
墙身变形缝(剖面)
线脚、分隔缝、分隔色带
2010-10-0115
2010-10-0126
2010-10-0111
2010-10-0112
2010-10-016
入驻
企业入驻成功 可尊享多重特权
入驻热线:0573-82720373
请手机扫码访问
客服
客服热线:0573-82720373
小程序
小程序更便捷的查找产品
为您提供专业帮买咨询服务
请用微信扫码
公众号
微信公众号,收获商机
微信扫码关注
顶部