1 / 4
G型——纸面石膏岩棉(玻璃棉)外墙内保温
2010-10-01
7162
-
窗台、窗上口节点详图
http://img.cnbaowen.net/201010/01/13-49-53-97-1.jpg
1/4
-
踢脚、窗侧口节点详图
http://img.cnbaowen.net/201010/01/13-50-05-66-1.jpg
2/4
-
平面节点详图
http://img.cnbaowen.net/201010/01/13-50-17-67-1.jpg
3/4
-
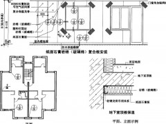
平面、立面示例
http://img.cnbaowen.net/201010/01/13-50-29-86-1.jpg
4/4
2010-10-0115
2010-10-0122
2010-10-0126
2010-10-0111
2010-10-0112
2010-10-016

入驻
企业入驻成功 可尊享多重特权
入驻热线:0573-82720373
请手机扫码访问

客服

小程序
小程序更便捷的查找产品
为您提供专业帮买咨询服务
请用微信扫码