1 / 13
F型——岩棉板外墙外保温系统
2010-10-01
6823
-
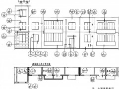
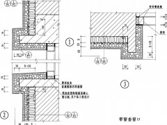
平、立面详图索引
http://img.cnbaowen.net/201010/01/13-17-33-42-1.jpg
1/13
-
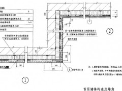
首层墙体构造及墙角
http://img.cnbaowen.net/201010/01/13-17-48-78-1.jpg
2/13
-
二层及二层以上墙体构造及墙角
http://img.cnbaowen.net/201010/01/13-17-59-97-1.jpg
3/13
-
勒脚
http://img.cnbaowen.net/201010/01/13-18-10-99-1.jpg
4/13
-
女儿墙和挑檐
http://img.cnbaowen.net/201010/01/13-18-31-97-1.jpg
5/13
-
窗口
http://img.cnbaowen.net/201010/01/13-18-46-38-1.jpg
6/13
-
带窗套窗口
http://img.cnbaowen.net/201010/01/13-18-59-70-1.jpg
7/13
-
挑窗窗口
http://img.cnbaowen.net/201010/01/13-19-11-15-1.jpg
8/13
-
阳台
http://img.cnbaowen.net/201010/01/13-19-24-61-1.jpg
9/13
-
保温阳台
http://img.cnbaowen.net/201010/01/13-19-37-57-1.jpg
10/13
-
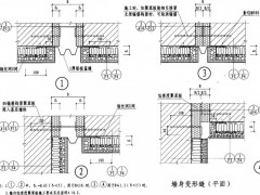
墙身变形缝(平面)
http://img.cnbaowen.net/201010/01/13-19-51-45-1.jpg
11/13
-
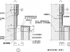
墙身变形缝(剖面)
http://img.cnbaowen.net/201010/01/13-20-04-57-1.jpg
12/13
-
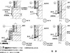
线脚、分格缝、空调机搁板
http://img.cnbaowen.net/201010/01/13-20-22-27-1.jpg
13/13
2010-10-0115
2010-10-0122
2010-10-0126
2010-10-0111
2010-10-0112
2010-10-016

入驻
企业入驻成功 可尊享多重特权
入驻热线:0573-82720373
请手机扫码访问

客服

小程序
小程序更便捷的查找产品
为您提供专业帮买咨询服务
请用微信扫码