1 / 10
G型——装配式龙骨薄板外墙外保温系统
2010-10-01
4039
-
平、立面详图索引
http://img.cnbaowen.net/201010/01/13-21-01-89-1.jpg
1/10
-
墙体平面节点祥图
http://img.cnbaowen.net/201010/01/13-21-14-65-1.jpg
2/10
-
墙体剖面节点祥图
http://img.cnbaowen.net/201010/01/13-21-25-66-1.jpg
3/10
-
勒脚
http://img.cnbaowen.net/201010/01/13-21-37-12-1.jpg
4/10
-
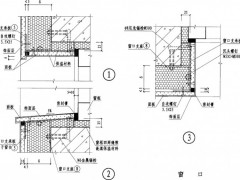
窗口
http://img.cnbaowen.net/201010/01/13-21-49-16-1.jpg
5/10
-
阳台
http://img.cnbaowen.net/201010/01/13-22-00-69-1.jpg
6/10
-
保温阳台
http://img.cnbaowen.net/201010/01/13-22-15-91-1.jpg
7/10
-
墙身变形缝(平面)
http://img.cnbaowen.net/201010/01/13-22-29-27-1.jpg
8/10
-
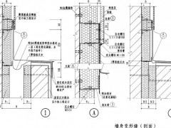
墙身变形缝(剖面)
http://img.cnbaowen.net/201010/01/13-22-45-88-1.jpg
9/10
-
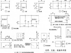
龙骨、支座、连接件祥图
http://img.cnbaowen.net/201010/01/13-22-57-40-1.jpg
10/10
2010-10-0115
2010-10-0122
2010-10-0126
2010-10-0111
2010-10-0112
2010-10-016

入驻
企业入驻成功 可尊享多重特权
入驻热线:0573-82720373
请手机扫码访问

客服

小程序
小程序更便捷的查找产品
为您提供专业帮买咨询服务
请用微信扫码