1 / 15
保温隔热复合装饰板外墙外保温系统
2010-10-01
4296
-
保温隔热复合装饰板外墙外保温墙体构造
http://img.cnbaowen.net/201010/01/13-27-32-30-1.jpg
1/15
-
保温隔热复合装饰板安装
http://img.cnbaowen.net/201010/01/13-27-43-73-1.jpg
2/15
-
平、立面详图索引
http://img.cnbaowen.net/201010/01/13-27-55-10-1.jpg
3/15
-
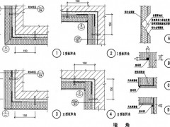
墙角
http://img.cnbaowen.net/201010/01/13-28-05-94-1.jpg
4/15
-
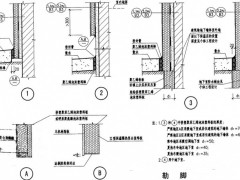
勒脚
http://img.cnbaowen.net/201010/01/13-28-17-84-1.jpg
5/15
-
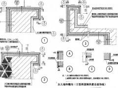
女儿墙和檐沟(I型保温隔热复合装饰板)
http://img.cnbaowen.net/201010/01/13-28-30-73-1.jpg
6/15
-
女儿墙和檐沟(II型保温隔热复合装饰板)
http://img.cnbaowen.net/201010/01/13-28-45-14-1.jpg
7/15
-
窗口(I型保温隔热复合装饰板)
http://img.cnbaowen.net/201010/01/13-28-56-13-1.jpg
8/15
-
窗口(II型保温隔热复合装饰板)
http://img.cnbaowen.net/201010/01/13-29-13-17-1.jpg
9/15
-
带窗套窗口(II型保温隔热复合装饰板)
http://img.cnbaowen.net/201010/01/13-29-25-10-1.jpg
10/15
-
封闭阳台(II型保温隔热复合装饰板)
http://img.cnbaowen.net/201010/01/13-29-36-83-1.jpg
11/15
-
不封闭阳台(II型保温隔热复合装饰板)
http://img.cnbaowen.net/201010/01/13-29-48-14-1.jpg
12/15
-
墙身变形缝(外保温)
http://img.cnbaowen.net/201010/01/13-30-22-28-1.jpg
13/15
-
墙身变形缝(内保温)
http://img.cnbaowen.net/201010/01/13-30-36-61-1.jpg
14/15
-
连接玻璃幕墙节点和空调机搁板
http://img.cnbaowen.net/201010/01/13-30-52-27-1.jpg
15/15
2010-10-0115
2010-10-0122
2010-10-0126
2010-10-0111
2010-10-0112
2010-10-016

入驻
企业入驻成功 可尊享多重特权
入驻热线:0573-82720373
请手机扫码访问

客服

小程序
小程序更便捷的查找产品
为您提供专业帮买咨询服务
请用微信扫码