GPZ(2009)盆式支座执行标准
依据标准JT/T391-2009,公路桥梁盆式支座GPZ(2009)是经交通部批准,于09年1月24日发布,5月1日实施的代替的标准是JT/T391-1999,新标准主要是在老标准的基础上进行修订、补充和完善,改善盆式支座的性能,对盆式支座的标准进行修改,使盆式支座产品标不断改进,为公路桥梁事业的发展提供基础和动力。2009年交通部关于盆式橡胶支座的新标准设计优化的公路桥梁用盆式支座GPZ(2009)盆式支座是钢构件与橡胶组合而成的新型桥梁支座,与同类的其它型号盆式支座和铸钢辊轴支座相比,具有承载能力大、水平位移量大、转动灵活等特点,GPZ(2009)扩大了盆式支座的使用范围,使中小跨径桥梁也可以选用小规格的盆式支座。对盆式支座位移量也进行了调整。
GPZ(2009)盆式支座工作原理
盆式橡胶支座的工作原理是利用半封闭钢制盆腔内的弹性橡胶块,在三向受力状态下具有流体的性质,来实现上部结构的转动,同时依靠中间钢板上的聚四氟乙烯板上座板上的不锈钢板之间的低摩擦系数来实现上部结构的水平位移。支座承载能力大大提高,解决了普通橡胶支座承载能力的局限。所以盆式橡胶支座是能满足大的支承反力,大的水平位移,大的转角要求的新型产品。
盆式橡胶支座是钢构件与橡胶组合而成的新型桥梁支座,与同类的其它型号盆式支座和铸钢辊轴支座相比,具有承载能力大,水平位移量大、转动灵活等优点。
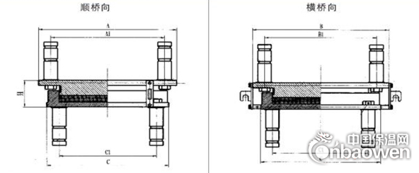
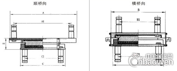
盆式橡胶支座是由上座板、密封圈、橡胶板、底盆、地脚螺栓和防尘罩等组成的。
盆式橡胶支座特点:
盆式橡胶支座在橡胶轴承的基础上,进一步改进后的更完美的橡胶轴承。盆式橡胶支座变形机制:
(1)使用底盆上的橡胶块三的限制,获得较大的容量;
(2)使用中间衬聚四氟乙烯板和顶板不锈钢板低摩擦系数较大的水平位移;
(3)使用锅三力弹性橡胶块均匀压缩大角度。
GPZ(2009)系列固定支座GD型
GPZ(2009)系列单向活动支座GX型
GPZ(2009)系列双向活动支座SX型
盆式橡胶支座应用范围:
适用于橡胶轴承力的10005000kn以上的大跨度桥梁,城市道路桥梁盆式橡胶支座。主要类型和structuresbasin式橡胶支座按其工作特性可分为固定橡胶轴承,橡胶轴承和一个可移动的单向活动三种橡胶轴承。橡胶轴承固定的板式橡胶,橡胶垫板,承压橡胶板,橡胶密封环,紧固环和橡胶轴承钢锚螺栓等部件,它主要用于承受垂直力和角度,并在桥下纵向和横向力。可移动的橡胶轴承的板式橡胶支座,橡胶垫板,承压橡胶板,橡胶密封圈,钢环箍,中间李宁板,聚四氟乙烯板,不锈钢板和橡胶支座地脚螺栓等,它是用来支持橡胶支座竖向力和角度,并能适应桥纵向和横向位移的需要。单向活动橡胶支座的结构和可移动的橡胶轴承相同,但在橡胶轴承两侧的中央槽(或设置横向限位板),限制了橡胶支座水平(或垂直)位移。固定支座。可移动的橡胶轴承纵向可移动的橡胶支座,盆式橡胶支座的板式橡胶支座、桥梁上部结构(梁)的连接,横梁运动;板式橡胶支座固结墩上,承受上部结构和力的传递到码头





































